Classic Cottage with Immense Lifestyle Appeal
18 Chapel Street, Richmond
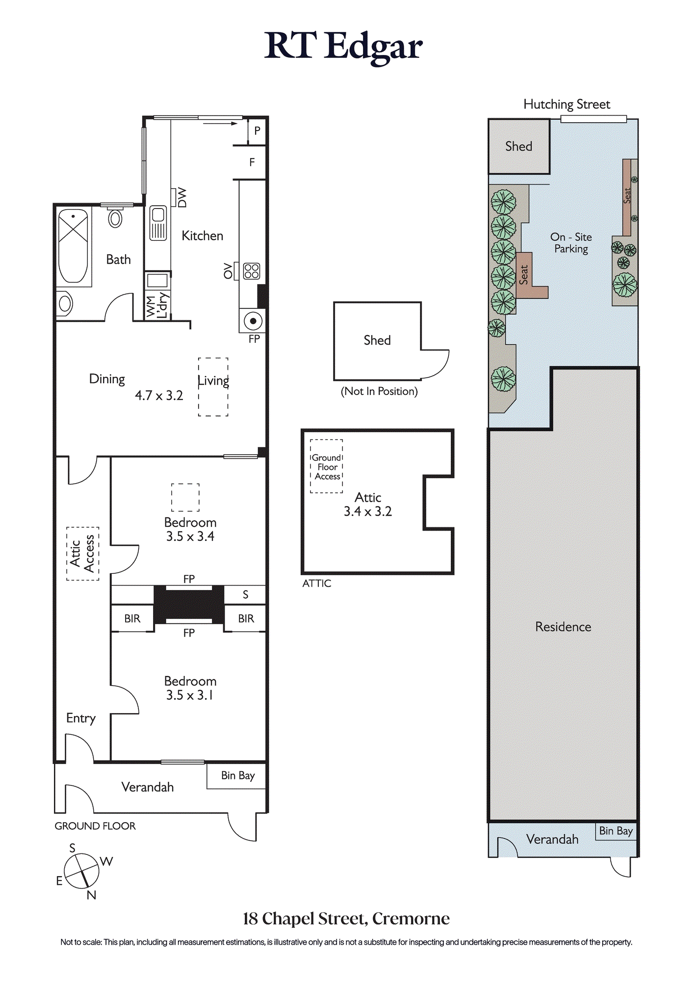
With Cremorne's coveted cafe lifestyle on tap and no heritage overlay, this c1890 solid brick and bluestone cottage is, without doubt, the area’s best-kept secret. Beautifully presented across a single level with second frontage and Hutchins Street vehicle access, the foundations are already in place.
From here, the options are wide open for imaginative buyers to keep or capitalise on a coveted address (STCA) moments from East Richmond Station and famous establishments such as Baker Bleu and Flour Child.
Making the most of its period beauty and private outdoor setting, the home’s current two-bedroom layout offers immediate modern comfort, with generous room sizes and high ceilings that draw in the sunlight across the day. To the rear, the living, dining, and kitchen domains highlight the original bluestone, leading through a modernist, well-appointed kitchen and full-height timber-sliding doors to a private entertainer’s courtyard garden, sheltered by a flourishing avocado tree.
The feeling of removed serenity here juxtaposes the incredibly urban setting, whilst inside a tidy bathroom, European laundry, and an original pot-belly stove/heater add to the functionality and character. With a garden shed and an attic offering abundant storage both inside and out, it is an outstanding prospect for now and the future, delivering an unbeatable lifestyle opportunity for all ages, moments from Barkly Gardens, Swan Street and Church Street shops, trams, bars and cafes with the MCG and Melbourne Park within walking distance or a quick tram ride.












