Prime Coastal Address with Bay Views
36 Kanyanya Avenue, Clifton Springs
Ideally located in a quiet residential street, this home presents an outstanding opportunity to secure a solid family home in one of the Bellarine Peninsula’s most established coastal communities, complete with views across the waters of Corio Bay and toward the iconic You Yangs mountains.
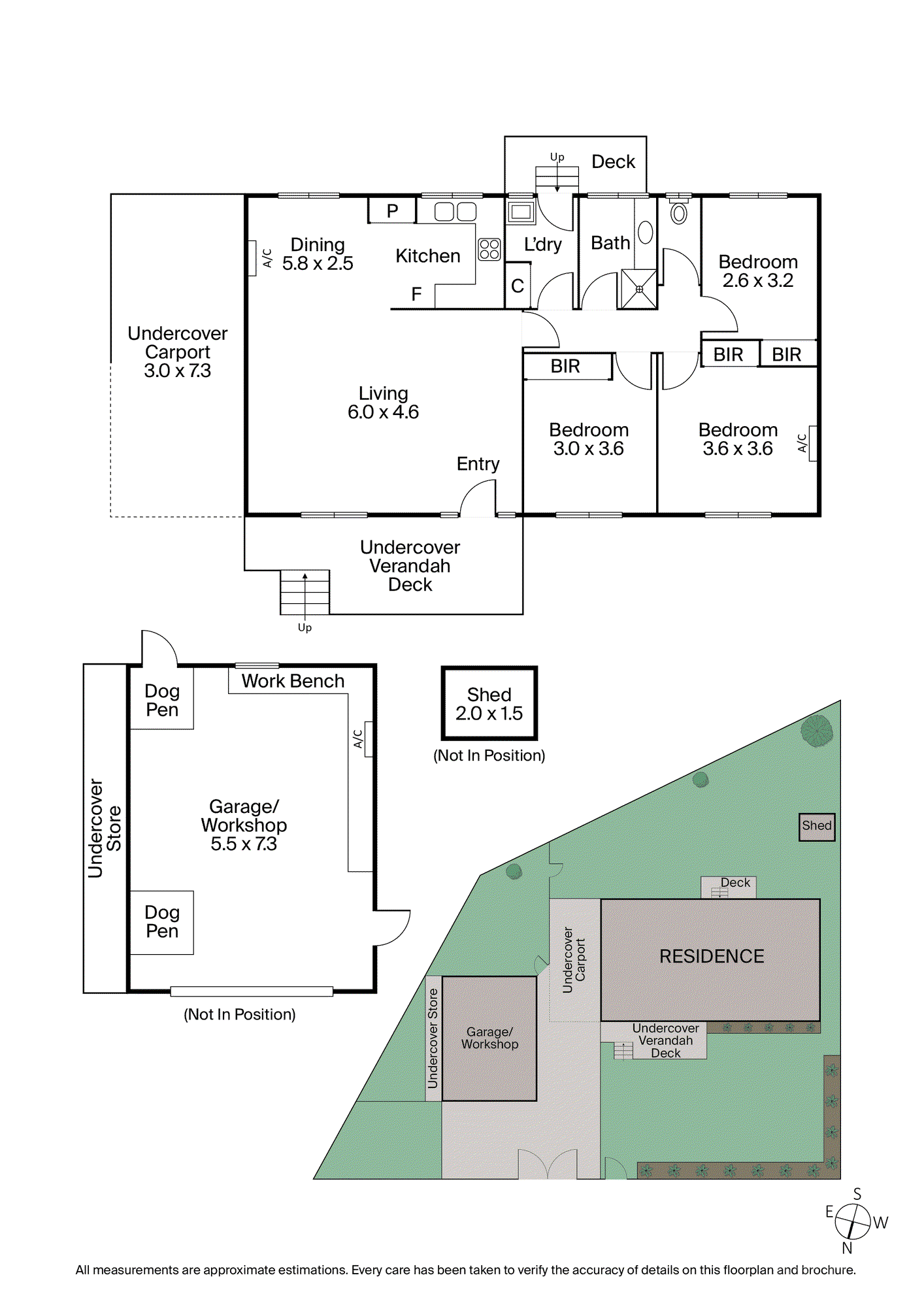
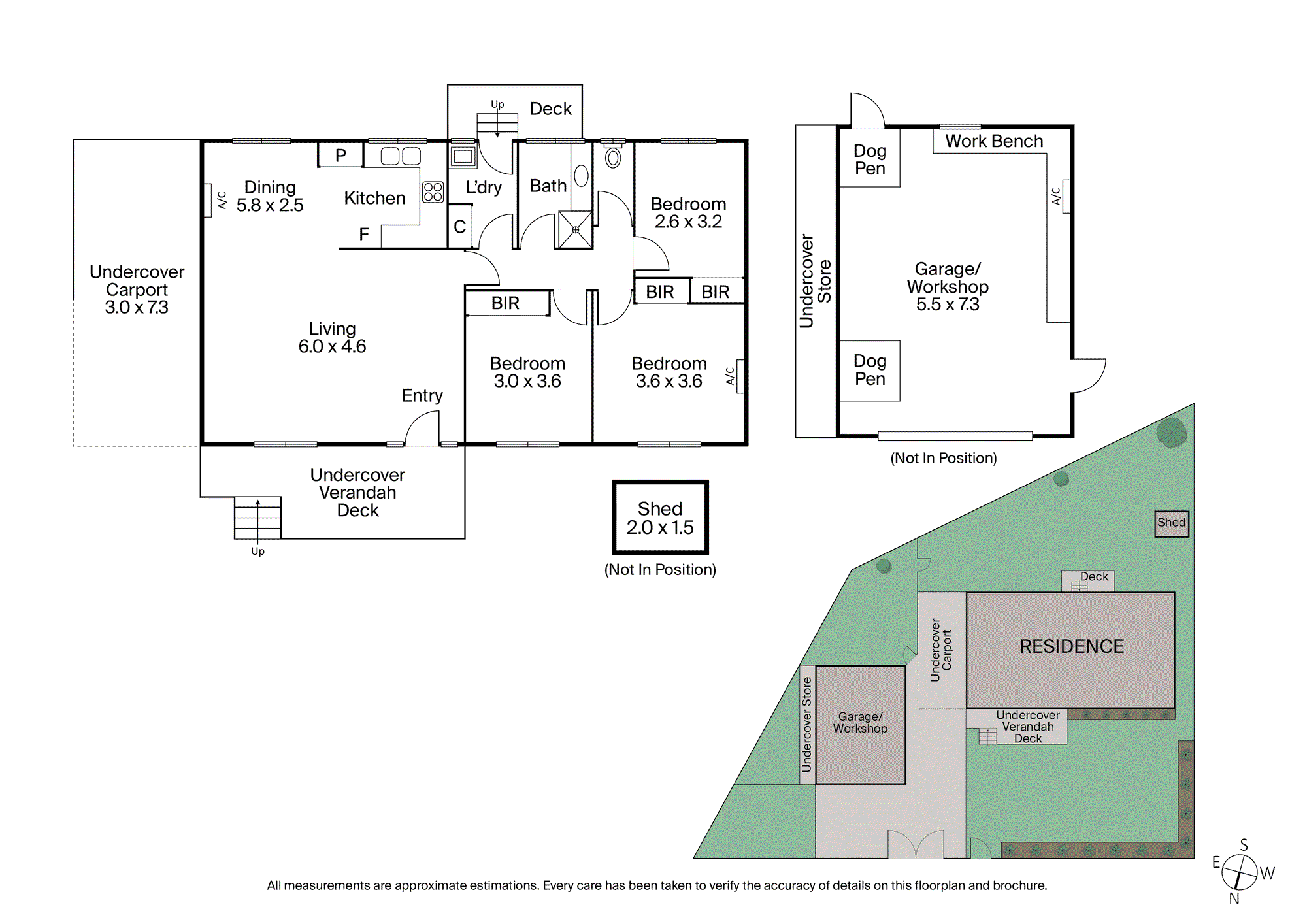
Built in 1978 and set on a generous 597m² (approx.) allotment, this well-positioned property offers comfortable living today with exciting scope to renovate, extend or further enhance in the future (STCA). The home comprises three bedrooms, all with built in robes, a central bathroom, complemented by excellent vehicle accommodation including a double lock-up garage plus a single carport plus car space, easily 4 cars with off street parking or perfect for those needing extra storage for vehicle, boats, caravans and other work-related equipment or storage.
The double lock-up garage is currently fitted out as a professional dog grooming facility, providing outstanding flexibility for home-based business use, workshop space or easy conversion back to secure garaging to suit your needs.
The practical floorplan provides a strong foundation, while the sizeable block allows ample room for outdoor living, further improvements or landscaping. Properties offering this combination of views, land size, versatility and location are increasingly rare in Clifton Springs, especially in this location and this land size.
Enjoy the relaxed coastal lifestyle the area is known for, with local schools, shops, parks, public transport and the Clifton Springs boat ramp all within close proximity. Easy access to Drysdale, Curlewis, Geelong and the wider Bellarine Peninsula further enhances the convenience of this location.
For your private inspection, call or text Lee Botsios on 0438 533 066 to inspect today.










