Designer Style with Sweeping Ocean Views
9/66 Thacker Street, Ocean Grove
Showcasing modern architectural design and a balance of raw and refined materiality, this custom townhouse offers a lifestyle of everyday ease, where exquisite interiors are matched by equally impressive views that stretch across the glittering ocean, Barwon Heads bridge, and river estuary.
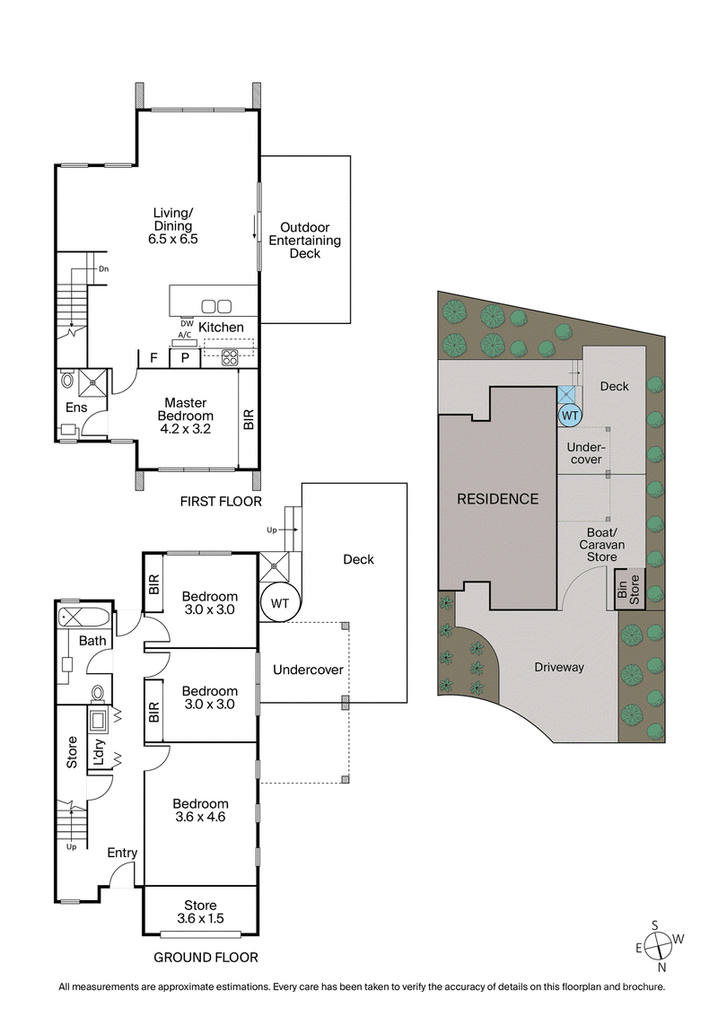
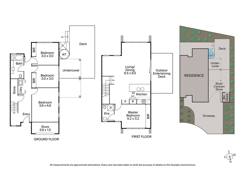
Set within an exclusive cul-de-sac, the custom Michael Leake-built residence unfolds beyond an impressive Silvertop Ash exterior, with its premium finishes on show from the outset via glazed terrazzo flooring and high square-set cornicing.
A reverse-style layout places the main living and dining space up top, with a raked ceiling, warm hardwood floors, and a full wall window allowing the splendour of the blue water horizon to take centre stage.
A sky-lit kitchen with full suite of stainless-steel appliances and contemporary plywood joinery presides over the space, with direct access to an elevated alfresco deck ensuing the perfect spot to take in mesmerising sunsets over the water while hosting family and friends.
The comfort continues with an upstairs main bedroom, awash in northern light and featuring a full wall built-in robe plus ensuite, while two further bedrooms (BIRs) anchor the ground-floor accommodation alongside a family bathroom and a versatile second loungeroom / fourth bedroom.
Additional highlights include split system heating and cooling, double glazed windows, Euro laundry, driveway parking plus gated yard access, handy storage options, and an outdoor shower that’s ideal for those post-beach rinse-offs.
With low-maintenance landscaping and a peaceful yet convenient location close to the town centre, Barwon River, and Blue Waters Lake, this home is ideal for downsizers, young families, and weekenders seeking a quality lock-and-leave lifestyle.
















