Strong Future Growth Potential
20 Turnbull Grove, Northcote
Set on approximately 419sqm in a highly coveted locale, this classic single-level residence presents an outstanding opportunity to renovate, rebuild or reimagine (STCA) in one of Northcote’s most convenient lifestyle locations.
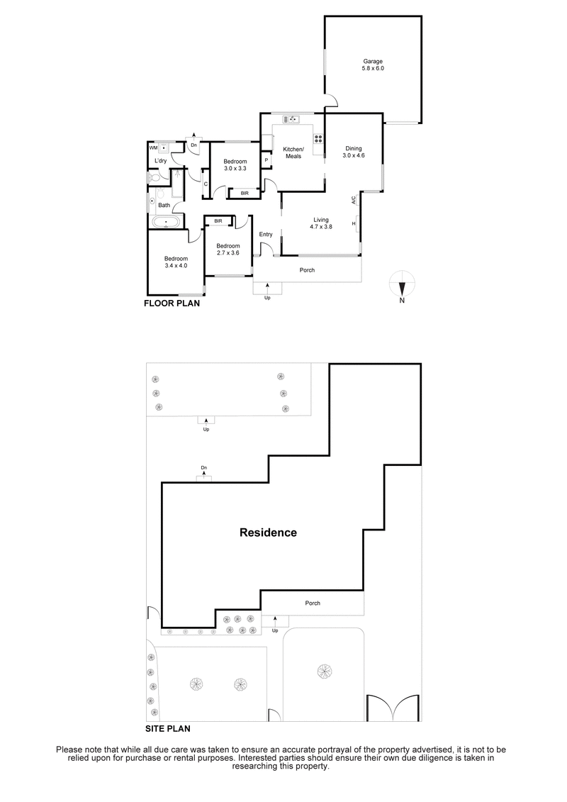
Behind its modest façade lies a functional three-bedroom layout with a generous north-facing living area, original kitchen and meals area, central bathroom with separate shower and bath, plus a dedicated laundry with WC, creating a comfortable environment for immediate occupancy or future transformation.
Outdoors, the low-maintenance front and rear gardens offer ample space for extension, landscaping or a brand-new architectural vision (STCA). A garage and additional storage complete the picture, enhancing practicality for families, investors or builders seeking a rewarding project.
The location is undeniably compelling. Enjoy the short walk to Northcote Station, High Street trams, vibrant cafés and shopping precincts, Northcote Primary School, Northcote High School, parklands including All Nations Park and Batman Park, as well as bike paths connecting directly to the CBD. With everything at your fingertips, this address delivers both lifestyle appeal and long-term growth potential.
Whether you choose to update the existing home or pursue a contemporary redevelopment, this is a rare chance to secure a well-positioned allotment in a thriving inner-urban neighbourhood.




















