Peaceful Setting, Amazing Coastal/Rural Location
1/24 Newcombe Street, Drysdale
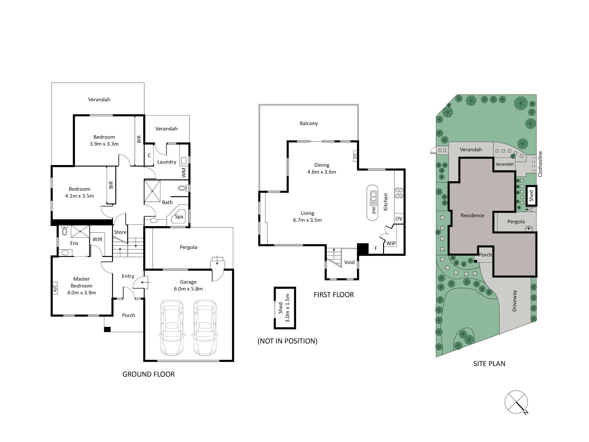
Peacefully positioned in a quiet cul-de-sac, yet mere footsteps to the vibrancy of the Drysdale Village, this exquisite, 3-bedroom home, with no body corporate fees, is the perfect haven for couples, families, holiday makers, astute investors and those buyers seeking a blend of quality and convenience.
Maximising every inch of its 471sqm site and wonderfully oriented to capture volumes of north facing sunlight, the home’s spacious double storey layout showcases a fresh coastal palette and an array of premium finishes including timber flooring and a huge entertainers balcony coupled with an excellent floorplan.
Staged under high ceilings which add to the generosity of space, an open plan living hub is presided over by a stylish kitchen, equipped with a full suite of stainless-steel appliances, a central island with handy breakfast seating.
Downstairs a seamless connection to an enclosed courtyard garden, delivering a private oasis in which to unwind, entertain, or simply soak up the sunny ambience after a day spent exploring the Bellarine’s nearby lifestyle attractions.
All bedrooms are equipped with built-in robes, master with walk in robe and oversized ensuite, split system air conditioning, gas ducted heating, central bathroom with corner spa bath and a double remote single garage.










