Iconic Views From Every Level
26 Thacker Street, Ocean Grove
From this elevated two storey residence, the outlook unfolds in a remarkable sweep across the Barwon Heads Bluff, the glistening estuary and the bridge that traces its way toward the open sea. It is a panorama that never sits still. Tides shifting, light softening and skies igniting at dusk, all framed from multiple vantage points throughout the home.
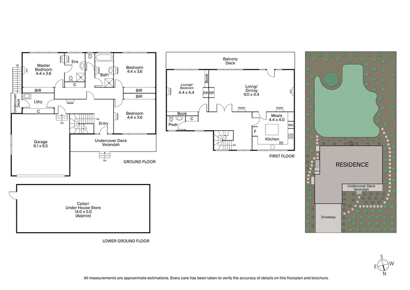
Living and entertaining are thoughtfully elevated to the upper level, where floor-to-ceiling glazing draws the landscape inward and natural light pours across open plan interiors. The connection to the outdoors is immediate, with living spaces extending to a broad balcony where days dissolve into sherbet toned sunsets and aquamarine horizons. It’s a place to gather, host or simply pause and absorb the theatre beyond.
The kitchen is designed with both scale and practicality in mind. Expansive bench space, generous storage, a central island and electric cooktop allows seamless entertaining without disconnecting from the view. The main living zone is anchored by an ambient gas fireplace, while a secondary living space mirrors the outlook, complete with its own fire and bespoke bookshelves, equally suited to creative work, quiet retreat or guest accommodation.
Below, the home shifts naturally into rest and privacy. Three generous bedrooms, all with built-in robes, look across the secure backyard and out toward distant estuary blues and Bass Strait beyond. The master suite includes a spacious ensuite, while the remaining bedrooms share a central bathroom. Hydronic heating, reverse cycle air conditioning, under house storage and a double lock up garage add practical ease.
Set on a substantial 785 sqm allotment, established gardens frame a private backyard with scope to further enhance, whether extending the home or introducing a poolside retreat (STCA). Moments from the village centre, patrolled beaches and Blue Waters Lake, this is a residence that pairs dramatic coastal outlooks with a layout designed for both entertaining and retreat. A rare vantage point from which to live the Bellarine lifestyle in full.




















