Sell The Car, Amenity Is At Your Doorstep
9 Baxter Street, Toorak
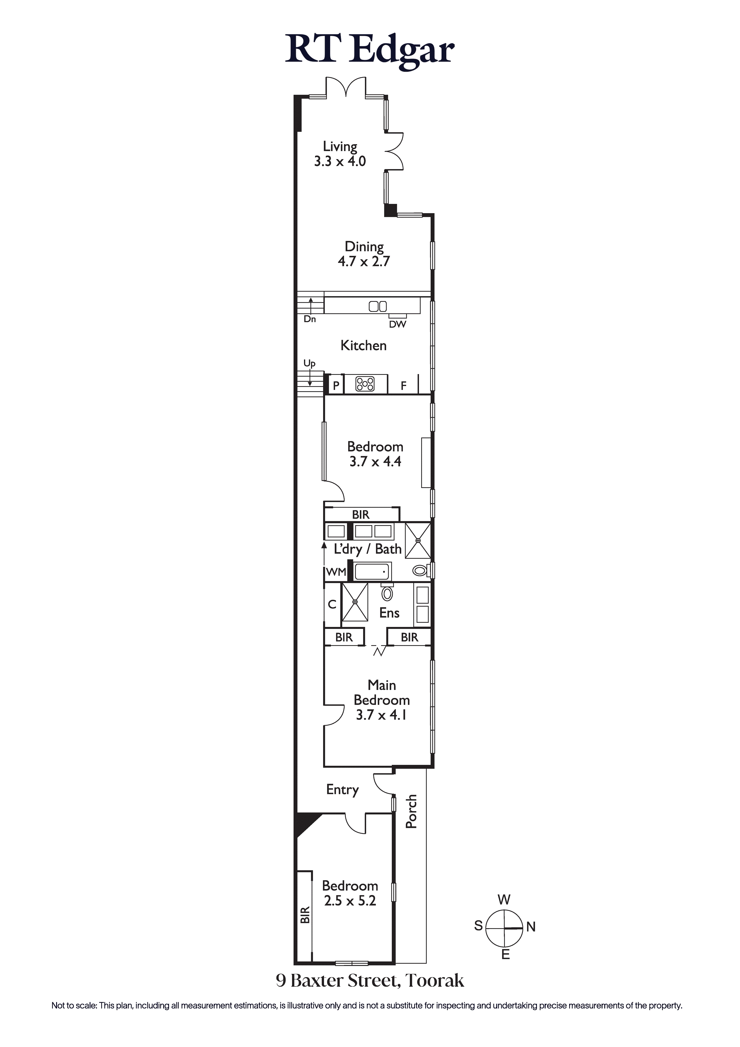
This stunning, light-filled, renovated single-fronted Edwardian residence, retaining many original features such as intricate stained glass windows, meticulous tuckpointing, tessellated tiles, and opulent ceiling roses, blending period charm with a contemporary north west facing extension an open kitchen living dining area with travertine underfoot and seamlessly connected to a private sun drenched courtyard. With the added benefit of off-street parking for two cars, but located within short walking distance to the Toorak Village shops and restaurants Beatty avenue Armadale, Orrong Park and public transport for easy access to elite private schools and the CBD.
Entering at the end of a quiet cul-de-sac to a well-proportioned formal living room or additional bedroom, hallway with soaring ceilings and skylights, master with ensuite and third bedroom opening to a spacious and light-filled kitchen, living and dining room framed by manicured gardens, additional features include heating and cooling, under house storage and security.








