Space, Style, and Sustainability
59 Madeley Street, Ocean Grove
Anchored in passive design and thoughtful sustainability, this effortlessly elegant Dennehy‑built home blends natural elements with refined sophistication, nurturing a serene connection to its coastal setting.
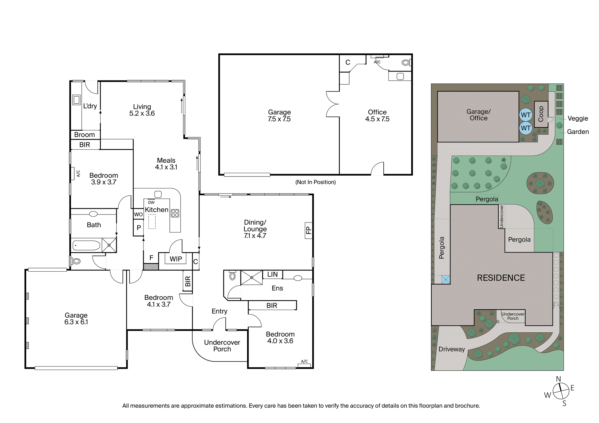
Situated on a generous 834sqm (approx.) north-to-rear block, with a lush permaculture garden, a thoughtfully conceived dual-living residence, and the bonus of a separate studio space, it’s a rare gem in the coveted Old Ocean Grove market.
Behind a freshly-painted exterior, the single level layout reveals soaring pitched ceilings and expanses of glazing that frame leafy outlooks while amplifying the home’s sense of scale and calm.
Basking in glorious northern light, the open plan family domain plays host to an exquisite kitchen, where a curved in-situ concrete bench, double drawer dishwasher, wall oven, AEG induction cooktop, and a concealed commercial-grade rangehood set the tone for effortless family connection and easy entertaining.
Another sun-drenched family living area invites slow, cosy moments beside the warm ambience of a gas log fireplace, flowing out to an alfresco patio and a vibrant permaculture garden bursting with herbs, berries, raised vegetable beds and 27 highly productive fruit trees.
Back inside, the main bedroom is a tranquil retreat, appointed with a full wall of built-in robes, ensuite, and split-system unit, while two additional robed bedrooms (split system/ceiling fan) share the full family bathroom.
Adding to the appeal, a rear studio conversion provides endless possibilities – whether as guest accommodation, overflow living space, or expansive home office – complete with its own heating/cooling, WC, and storage.
The picture is completed by a 20-panel solar system, three-phase power, an outdoor shower, and abundant parking options including a double garage with pull-through access to a tandem in-line carport, plus a separate multi-car garage at the rear.
Just 100m from the Madeley Street shopping strip, a short stroll to Ocean Grove Tennis Club and playgrounds, and within walking distance of The Terrace shops and cafés, local schools and sporting facilities, this inviting residence combines a laid‑back lifestyle with a sought‑after address.
























