Sustainable Design In A Premier Address
43 The Avenue, Ocean Grove
Quietly set along one of Ocean Grove’s most prestigious residential avenues, this architecturally considered residence presents a rare synthesis of thoughtful design, environmental intelligence and refined coastal living. Crafted by highly regarded JKC Custom Builders, the home has been carefully shaped in response to site, climate and landscape, creating a dwelling that feels calm, enduring and naturally connected to its surroundings. From this tightly held address, a short stroll links effortlessly to the village centre, parklands, the banks of the Barwon River, Blue Waters Lake and Ocean Grove’s celebrated coastline.
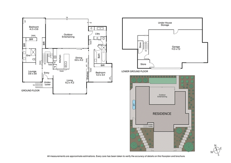
The floorplan reveals a beautifully resolved composition where two fully appointed bedroom wings frame a generous central living domain. Natural light, considered proportions and warm material selections establish an interior that feels both sophisticated and welcoming. A designer kitchen equipped with premium Smeg appliances, including a Marc Newson designed oven, anchors the space with quiet authority. Broad sliding doors extend the living environment to a sun filled north facing entertaining deck sheltered by an electric awning and embraced by established gardens and mature trees. Protected from prevailing south-westerly winds, this outdoor setting forms a natural extension of daily living for entertaining, relaxation and quiet retreat.
Accommodation has been arranged to maximise comfort and privacy. The primary suite forms a peaceful retreat with beautifully appointed ensuite, hydronic heated towel rail and refined stone finishes. A second bedroom wing is serviced by a central bathroom featuring fixtures by Marc Newson. A separate lounge introduces flexibility as a potential 3rd bedroom, private study or retreat, while generous storage including under stair and under house areas, a large laundry and an expansive 11.0 x 7.2 garage ensure exceptional everyday practicality.
Environmental performance sits at the core of the design. Passive solar orientation, cross flow ventilation and Rylock double glazed windows work with spray foam insulation and heat recovery ventilation to create superior comfort. A comprehensive energy system includes a 12kW solar array, Fronius inverter and energy meter, Tesla Powerwall battery and EV charging infrastructure. Hydronic heating, split system climate control, Luxaflex honeycomb blinds and an Everhot heat pump further enhance efficiency, while landscaped gardens and a 5,000L water tank complete a residence where sustainability and craftsmanship meet quiet sophistication.















