Architecturally Designed Luxury Residence in Prestigious Lifestyle Setting
2B Marriott Street, Caulfield
Showcasing exceptional design, refined finishes and generous proportions, this brand-new architecturally designed town residence delivers an outstanding standard of modern family living in one of the area’s most desirable neighbourhoods. Ideally positioned moments from the expansive greenery of Caulfield Park, premier shopping precincts and renowned schools, the home offers both lifestyle convenience and contemporary elegance.
Behind a striking façade, the residence reveals a beautifully curated interior where natural light, thoughtful design and premium materials combine to create a sophisticated yet highly functional living environment.
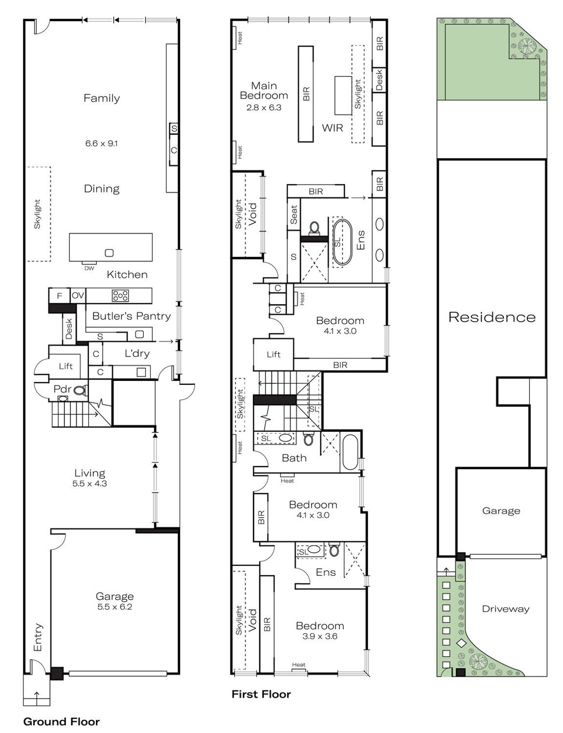
Upon entry, an impressive oversized front door opens to a dramatic double-height foyer, illuminated by a skylight above. This breathtaking introduction sets the tone for the home’s architectural brilliance and seamless balance of style and practicality.
At the heart of the residence lies an expansive north-facing open-plan living and entertaining zone, where bespoke joinery and an elegant marble bar create a refined yet welcoming space for everyday living and hosting.
The statement kitchen has been meticulously designed for both form and function, featuring a substantial marble island bench, extensive soft-close cabinetry and a suite of striking black appliances by Smeg, including a five-burner gas cooktop. A fully equipped butler’s pantry with a second oven and dishwasher further enhances the kitchen’s impressive amenity.
Floor-to-ceiling sliding doors at the rear open seamlessly to a bluestone terrace and landscaped garden, creating a perfect indoor–outdoor connection for effortless alfresco dining and entertaining.
Upstairs, accessible via a sculptural staircase or internal lift, a peaceful accommodation zone sits beneath additional skylights. The level comprises four generously proportioned bedrooms, highlighted by a luxurious master retreat featuring a fully fitted walk-in robe/dressing room and an opulent marble ensuite with freestanding bath and skylit walk-in shower.
Two additional bedrooms include built-in robes and are serviced by a stylish family bathroom with stone vanity, while a fourth bedroom at the front enjoys the privacy of its own designer ensuite.
Further enhancing the flexibility and comfort of the home are a formal sitting room with courtyard access, two dedicated study nooks with custom desks and cabinetry, a powder room, full laundry, ducted heating and cooling, engineered oak flooring, plush wool carpets, and a secure double garage with internal access.
Perfectly positioned for a premium lifestyle, the home is just minutes from the vibrant retail and dining hub of Caulfield Village, leading educational institutions including Shelford Girls' Grammar and Caulfield Junior College, as well as Monash University, and offers easy access to transport via Caulfield Railway Station and nearby tram services.

















