The Green House
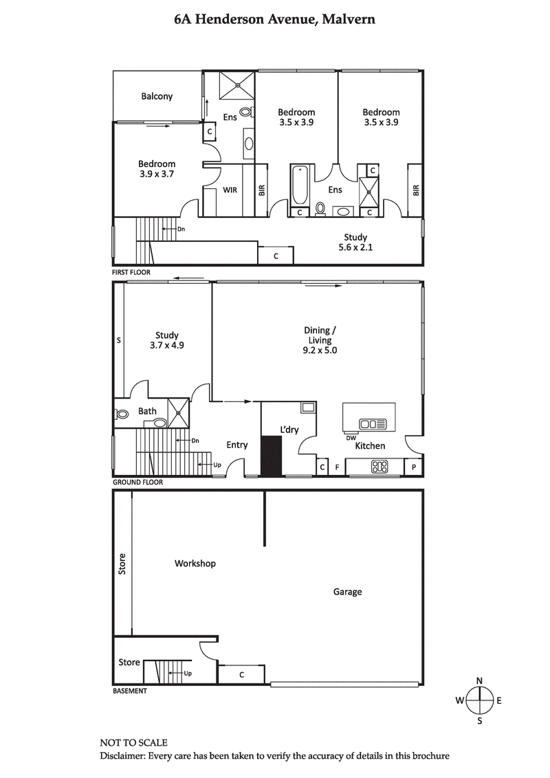
6A Henderson Avenue, Malvern
This stunning contemporary residence, inspired by Japanese design, creates your own private sanctuary. Floor-to-ceiling glass frames the green north-facing garden and draws natural light throughout the home, while hardwood floors run through the interiors. Open-plan living is complemented by separate family areas, allowing space for the whole family, with the practicality of a double lock-up garage. High surrounding walls and a gated entrance ensure privacy and security in one of Malvern’s most sought-after streets.
Upon entry, the residence opens to a generous open-plan living, dining and kitchen domain flowing to a protected front yard. The ground level includes a large ensuite bedroom, ideal for guests, while upstairs features three oversized bedrooms, including a main with a walk-in robe, ensuite and private north-facing balcony, with the remaining bedrooms sharing a family bathroom. An oversized double garage and separate games area on the lower level provide additional space and flexibility for the family.












