Warehouse Living In An Iconic Setting
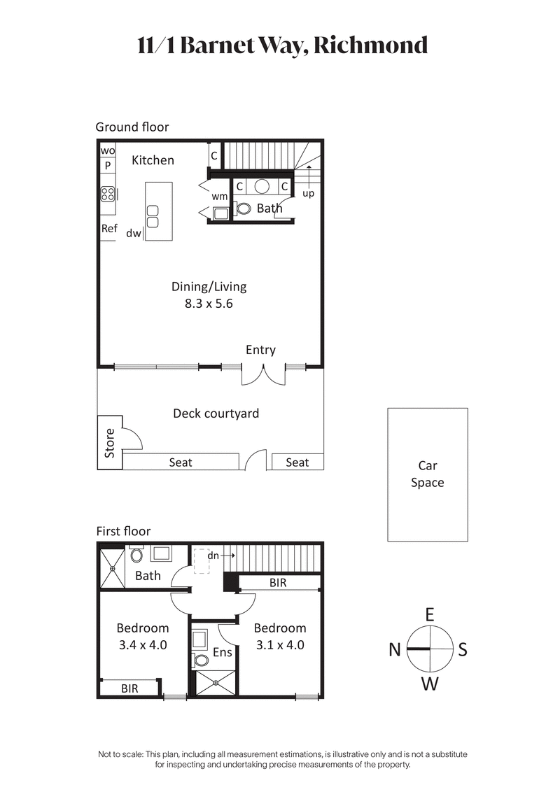
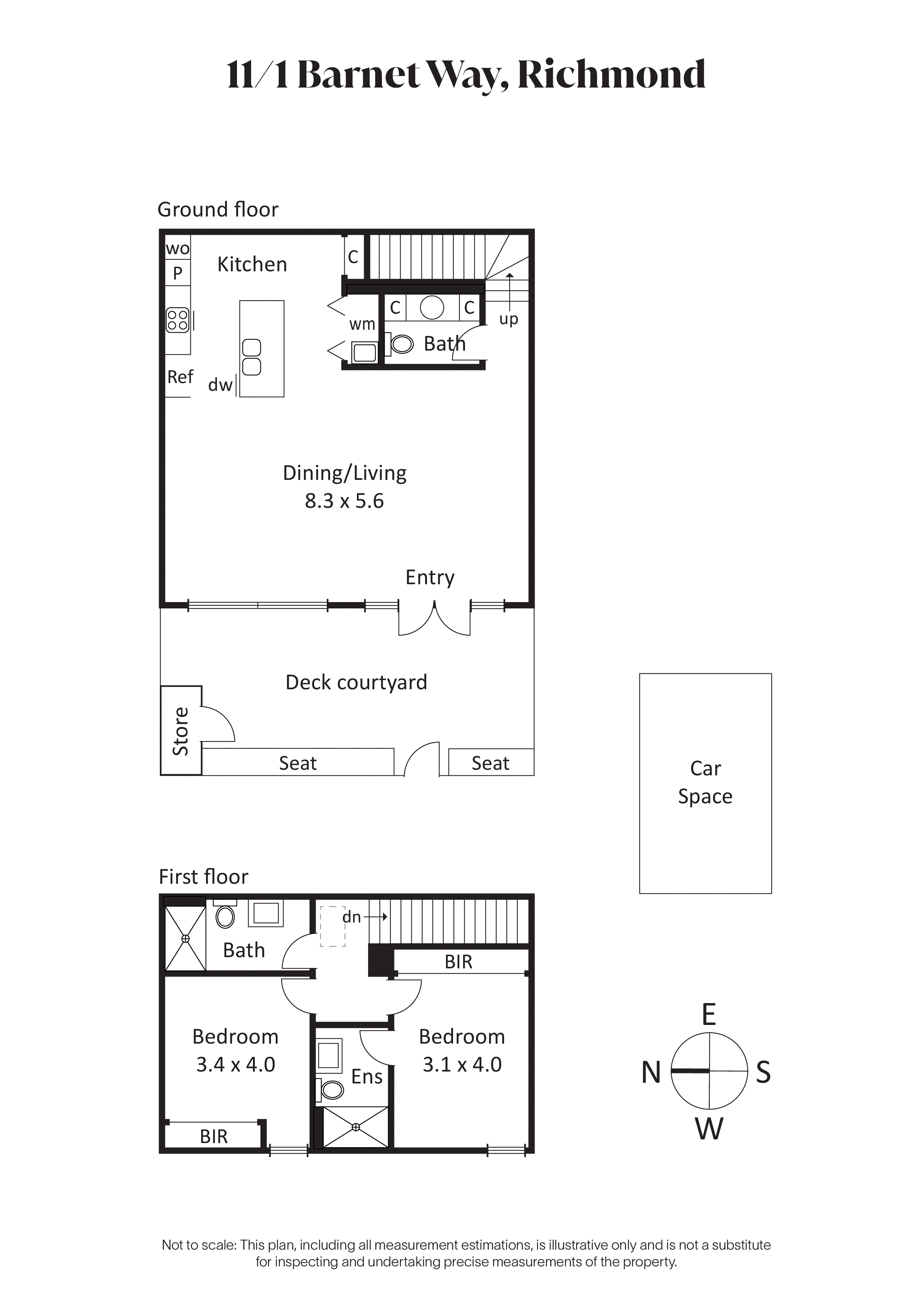
11/1 Barnet Way, Richmond
Perfectly Positioned within the historic former GTV9 Studios precinct, this stylish warehouse with soaring ceilings two-storey loft style residence blends industrial character with modern comfort, offering a unique lifestyle in one of Richmond’s most distinctive communities.
Beyond its oversized private courtyard entrance, the home opens to floor to ceiling bespoke windows making it a light-filled open-plan living and dining domain, where timber floors and contemporary lighting create an inviting atmosphere perfect for entertaining and modern living. The well-appointed kitchen is equipped with quality Miele appliances, generous storage and sleek finishes, making it equally suited to everyday living and pure entertaining on the deck with drinks and nibbles after a hard day’s work.
Upstairs, the main bedroom is complemented by built in robes and a private ensuite, while the second bedroom with built in robes is serviced by a central bathroom. A convenient powder room downstairs and a European laundry add further practicality to the home’s thoughtful and flexible layout.
Complete with a private decked area, secure basement parking and a storage cage, the home delivers an effortless low-maintenance lock and leave lifestyle.
Enjoy the convenience of this prized Richmond address, moments from Swan Street’s cafés, restaurants and trams, Burnley Station, Burnley Park and the Yarra River trail, all within easy reach of the CBD.













