Endless Views, Exceptional Living
5 Point King Road, Sorrento
Capturing a breathtaking bay panorama, this exclusive residence, positioned high above the coastline enjoys a commanding clifftop position and presents expansive living and impeccable quality. Just footsteps to Point King Beach and minutes to the thriving centre of Sorrento, the enviable setting offers a perfect proposition as a much loved Summer playground and year round escape.
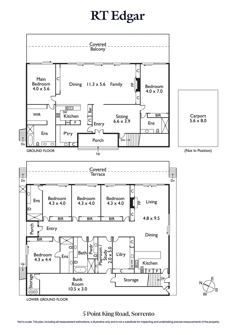
Designed by renowned architect Wayne Gillespie to create a multigenerational home with self contained living across the two levels.
Bathed in abundant natural light throughout, both levels feature wide walkways and elevated ceilings within capacious interiors, while living and accommodation spaces flow seamlessly out to two generous full-width terraces. Each level reveals large lounge/dining rooms with open fire places, alongside well-equipped kitchens, while the upper level also features a large butlers pantry with integrated laundry appliances.
Relax in the peace and tranquility of the terraces, talking in the sweeping vistas of the azure bay as boats of every size sail by including the Sorrento/Queenscliff ferry, with views encompassing a long ribbon of the peninsula, then around the Sorrento, Arthurs Seat and beyond. At the lower level and privately set behind high brush hedges, the landscape garden frames the solar heated pool, while a gate leads out to charismatic Point King Beach.
Spacious accommodation includes two ensuite bedrooms on the upper level, two ensuite bedrooms on the lower level, with two further large bedrooms all within built-in or walk- in robes. A study/playroom and spacious bunk/storage room provide additional sleeping quarters, serviced by a fifth bathroom and separate powder room.
Further features include a large fitted laundry, ducted cooling and hydronic central heating, light hardwood floorboards, abundant storage throughout, four water tanks servicing the gardens, a private driveway with security gate access and video intercom, plus back to base security.



























