When Convenience Meets Location
3/555 Gilbert Road, Preston
Expression Of Interest Closing 5th May at 5:00pm. (Unless Sold Prior)
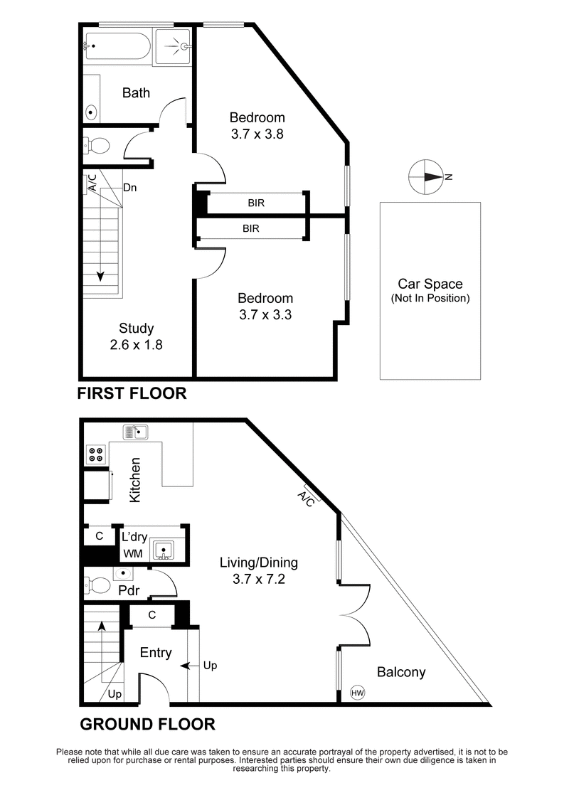
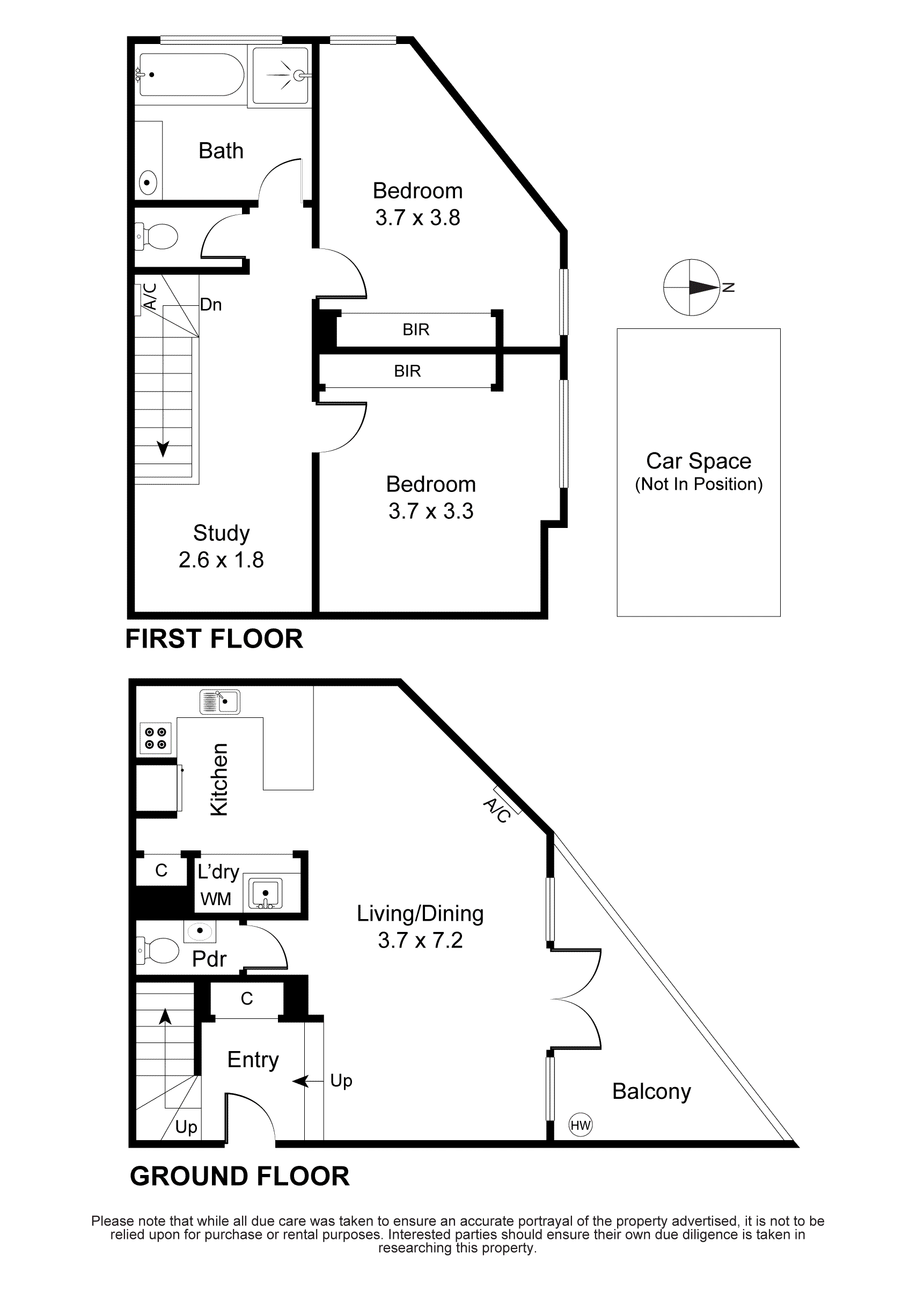
Positioned in one of Preston’s most sought-after pockets, just metres from cafés, shops and parklands, this spacious two-bedroom, two-storey apartment presents an excellent opportunity for first-home buyers and savvy investors alike. Privately set on the first floor of a boutique complex, it offers peaceful living despite its prime Gilbert Road address.
Fresh hardwood flooring enhances the light-filled interior, with a generous open-plan living and dining zone that extends seamlessly to a private balcony — perfect for relaxing or hosting. The well-appointed kitchen features wraparound bench space with breakfast bar seating area, stainless steel oven and an electric cooktop.
Upstairs, a substantial landing provides an ideal dedicated home office space or additional retreat. Two spacious, light-filled bedrooms with built-in robes offer excellent proportions. The bathroom is immaculately presented and includes both a shower and separate bath.
Further enhancing the home’s functionality and comfort are a functional laundry, split-system heating and cooling, powder rooms on both levels, secure intercom entry, a basement car space, and a large storage area within a secure garage.
A low-maintenance home offering space, flexibility and an unbeatable lifestyle location.
The apartment sits in an excellent spot in Preston. You’re across the road from J.S. Grey Reserve, and steps from cool local cafés. The 11 tram to the city stops right outside. It’s an easy walk to Coburg Hill Shopping Centre and a short drive to Preston Market. Nearby Newlands Primary School is a stroll away, and you’re zoned to Preston High School.













