Stunning Robert Mills Designed Family Residence
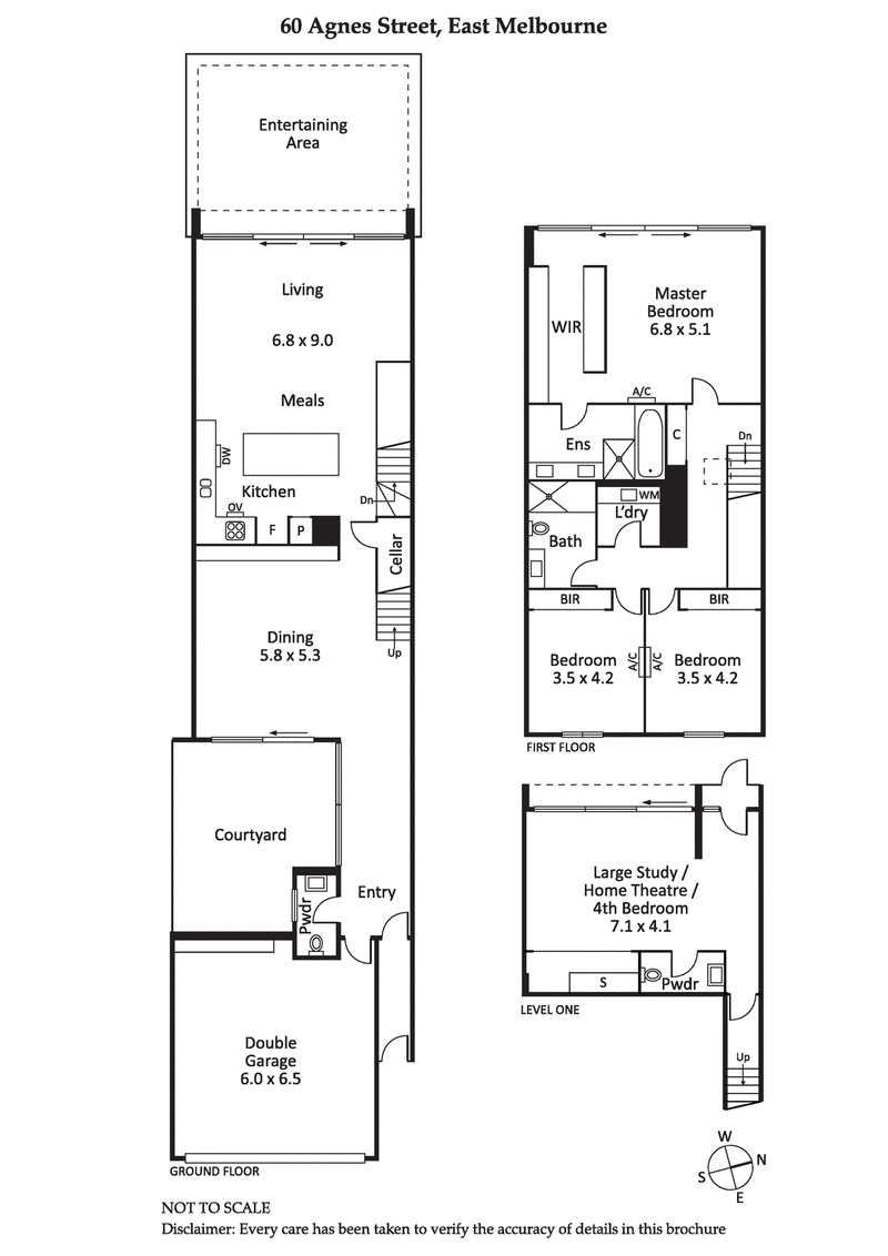
60 Agnes Street, East Melbourne
This stunning Robert Mills designed family residence has the perfect blend of formal and informal living areas, superbly located within a short walk to the MCG, CBD, Bridge Road shops, cafes, restaurants and transport.
Comprising security entrance, formal living room opening onto a private courtyard garden, modern fully equipped Miele kitchen with reconstituted stone bench tops adjoining oversized family room opening onto large full width West facing entertaining terrace with views of the city. Upstairs includes main bedroom with stunning city views, walk in robe and glamorous ensuite with ‘his and hers’ vanities, separate bath, shower and WC, two additional double bedrooms (both with built in robes), family bathroom and separate laundry. The ground level offers a home office/guest suite or home theatre room, private entrance and direct access to the house.
Additional features include double lock up garage, reverse cycle heating/cooling, ceramic floors, video intercom and floor-to-ceiling double glazed windows.
A brilliant position and lifestyle in this highly regarded Jolimont Terrace precinct.

















