Actual View from the Living Area
101/8 Breavington Way, Northcote
Sold
03/07/2024
Undisclosed
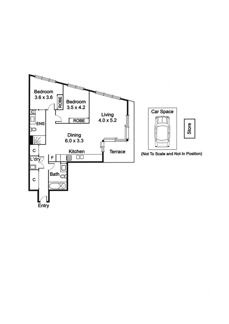
Beautifully presented 2 bedroom, 2 bathroom apartment in the highly sought after Acacia Building.
Situated on the first floor at the front of the building with uninterrupted views across All Nations Park and boasting a generous balcony. Recently updated with fresh paint, new carpet and new blinds throughout this terrific apartment offers excellent security with lift access from basement car parking and storage cage.
LOCATION
Northcote
101/8 Breavington Way, Northcote, VIC 3070












