Renovated Victorian Elegance Just Steps From The Royal Botanic Gardens
24 Hope Street, South Yarra
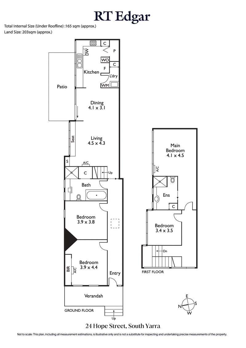
203
Sold
23/08/2025
Undisclosed
Superbly renovated single-fronted Victorian home in this highly sought after location, close to the Royal Botanical Gardens, Fawkner Parks and the Domain Road Cafes, restaurants and transport.
Comprising; Entrance hall, 2 double bedrooms, family bathroom, generous North-Facing living/dining room, modern kitchen with stone benchtops and Westinghouse appliances, 900mm gas stove top, walk-in pantry and separate laundry with trough and private Northern terrace.
Upstairs; Main bedroom with ensuite bathroom and 4th bedroom.
Additional Features: Wide Oak floorboards, Hydronic Heating and Split System Air-Conditioners.
Land: 203sqm approx.
LOCATION
South Yarra
24 Hope Street, South Yarra, VIC 3141



















