The Garden Residence at Oceano Hampton
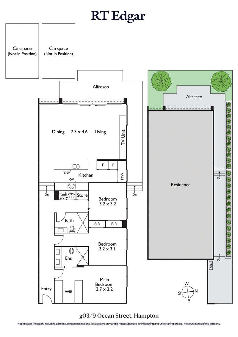
G03/9 Ocean Street, Hampton
Oceano developed and built by Lowe Living introduces this exclusive garden apartment shaped by serious design talent, with ADDARC’s architecture, Bec Judd Interiors’ style direction and Florian Wild’s landscaping working toward a single, cohesive vision. The result is a three-bedroom home firmly connected to its wrap-around private garden and positioned only metres from Hampton Street’s dining and retail strip, giving the residence a level of lifestyle reach that extends well beyond its ground-level setting.
Interiors carry an immediate sense of calm, defined by generous proportions and a clear connection to the north-west garden surroundings. The open-plan living and dining area draws in natural light through full-height glass, amplified by soaring ceilings and a wide layout that pushes the outlook forward. This space moves easily between everyday use and larger entertaining, supported by a naturally shaded private terrace and a Tundra marble kitchen equipped with Miele appliances, an integrated French-door refrigerator, and a walk-in pantry designed to conceal mess and extend the hosting appeal.
Three queen-sized bedrooms line the northern edge, accompanied by two well-appointed bathrooms, including the main suite’s en suite, each finished in Tundra marble with premium fittings. Secure lobby arrival and lift access reinforce the boutique exclusivity of the development, comprising only nine residences, whilst the residence itself comprises motorised external blinds, individually zoned reverse-cycle heating and cooling, video intercom, keyless entry, basement parking for two, and a lockable storage room. Just a few minutes from the beach, city-bound transport and an endless choice of cafés, wine bars, boutiques and dining options, this is lock-and-leave Bayside excellence on an entirely new scale.















