An Easy Elwood Lifestyle with Oversized Proportions
1/12 Daley Street, Elwood
Sold by - Michael Martin (Director RT Edgar)
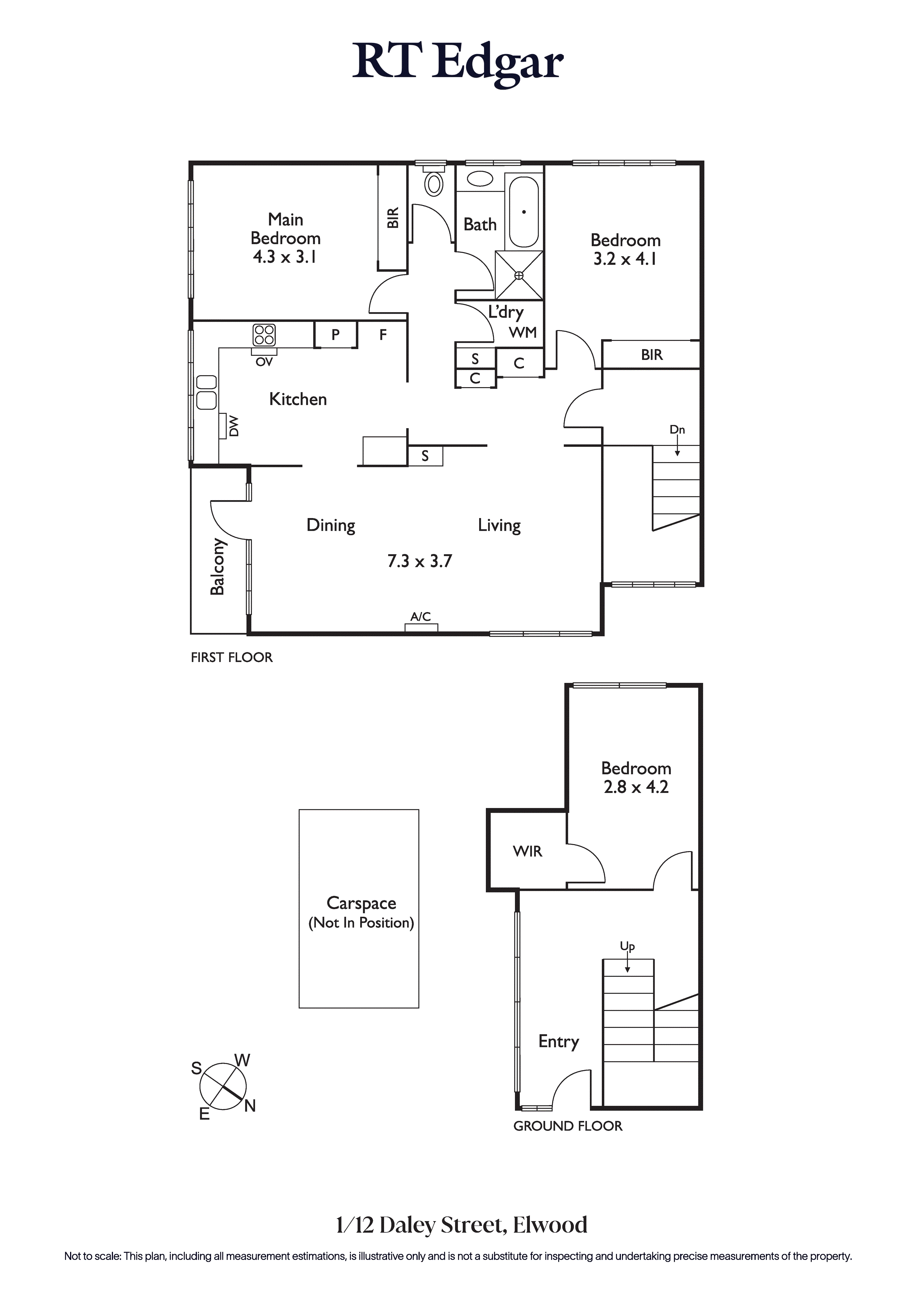
Occupying a prized position within a boutique block of only five on the leafy border of Elsternwick Park, this thoughtfully updated three-bedroom residence across two substantial levels offers a low-maintenance foothold in a highly admired lifestyle pocket, a short stroll to Ormond Village and moments to the beach.
A statement timber wall introduces a light-filled entryway that draws you upstairs, where the corner living and dining room captures northern light across generous proportions and opens directly to a tiled, covered balcony. The remodelled kitchen pairs black bespoke cabinetry with charcoal stone benchtops, incorporating Bosch and Electrolux appliances alongside ample storage, all looking out to a leafy streetscape. Two robed bedrooms, fitted with ceiling fans and new carpet, share an appointed bathroom with a separate WC and adjacent laundry, while a private lower-level bedroom adapts equally well as a teenager's retreat or dedicated home office.
Positioned within walking distance of the cafes and wine bars of the village, Elwood Primary and Elwood College, with Elsternwick Station, buses and multiple tram routes providing direct city access, this unique and oversized residence also includes video intercom, air conditioning and secure undercover parking for one, perfect for city dwellers seeking serenity and space with lifestyle on tap.




















